|
SpongeBob's New Home
|
|
05-11-2014, 12:46
(This post was last modified: 05-11-2014 13:04 by davidbrady.)
Post: #1
|
|||
|
|||
|
SpongeBob's New Home
Folks,
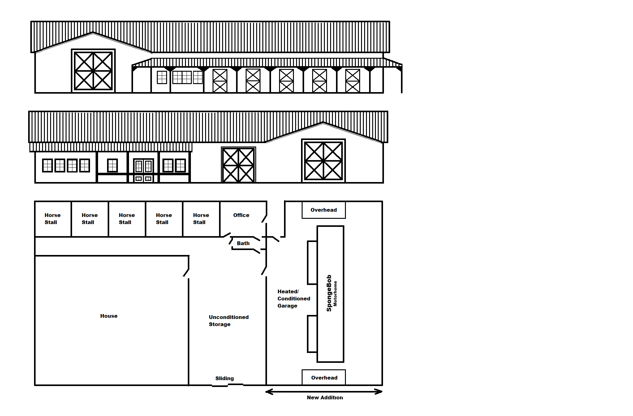
I'm adding an addition on to my Morton Building to house SpongeBob. The addition will add 37.5' to the length of the building and over 2000 sq ft of usable conditioned interior space. I'll have two overhead doors, 14'x14', to allow driving clear through the barn. The barn dimensions are currently 60'x75'; this will jump to 60'x112.5' when complete. I'm open to all suggestions: david brady, '02 Wanderlodge LXi 'Smokey' (Sold), '04 Prevost H3 Vantare 'SpongeBob' "I don't like being wrong, but I really hate being right" |
|||
|
05-11-2014, 15:57
(This post was last modified: 05-14-2014 03:40 by mhughes01.)
Post: #2
|
|||
|
|||
RE: SpongeBob's New Home
(05-11-2014 12:46)davidbrady Wrote: Folks, We'll, if you're going to all that trouble, don't forget the full length mechanical pit with fume ventilation and sump ![]() The guys that put mine in made it about 3" too wide so I'm doing some mods so as to be able to install a safety bar and not have to worry about rubbing the tires. Fully equipped with electricity, compressed air, etc. The compressed air downstairs is handy for lots of thing, including purging the drain tank that one dumps oil into when changing it. There is no way I would crawl under a bus, no matter what kind of support it has. You have to do some clever measuring to get the height just right for you when you're standing down there. You can always use a couple of step stools to get up into suspension components. We went with a boiler and hot water heat in the floor as the shop is big (60x60) and we needed fast heat recovery in the winter when we have to take tractors out to do farm chores. Mike and Tracy - near Edmonton, Alberta, Canada 1999 43 LXI, "Maddy" - 60 Series Detroit 2006 Jeep Liberty CRD (Diesel) or Jeep Rubicon 4 Down Toad http://www.challengerwest.com
|
|||
|
05-12-2014, 10:09
Post: #3
|
|||
|
|||
|
RE: SpongeBob's New Home
Hey David,
New coach looks great. I’m sure you have considered all these things but since you asked: 1 looks as though the addition is going where the coach is sitting in the first picture 2 assume Morton building is doing the addition 3 what will your rafter height be? In our building, I can stand upright on top of the coach but we didn’t put a ceiling, therefore I have to duck under the rafters which are about waist high 4 we had skylights put in for increased daytime lighting; I think they can do that now on the top of the side walls 5 will you be putting in new concrete or using existing? If you are putting new, consider heating the floor as your heat source 6 since you are adding 37.5 feet, did you consider increasing to 50 and doing back in bays, that way you could add a pit in one of the bays and have other bays for future rolling stock 7 my rule of thumb is, if I think 2000 sq feet is enough today, then I better make it 4000, looks like you are just starting to think about the kid’s cars, we are keeping a 2004 BWM 330ci convertible for Jane’s three year old niece, HA 8 make sure you have plenty of room or access doors, so you can move things around without having to start the coach 9 one nice addition to the coach would be a Featherlite tall trailer, for carrying stuff, kids room at the campground, etc Gregg & Jane Gesse 1994 WLWB 40 Mid-Door |
|||
|
05-12-2014, 16:45
(This post was last modified: 05-12-2014 22:29 by travelite.)
Post: #4
|
|||
|
|||
RE: SpongeBob's New Home
(05-11-2014 15:57)mhughes01 Wrote: We'll, if you're going to all that trouble, don't forget the full length mechanical pit with fume ventilation and sump Thanks Mike. I'm with you on not wanting to crawl under these behemoths. I don't have room for an indoor pit but I am thinking of an out door facility. Although my land is at 2000', It's flat, doesn't have good runoff, and has a high water table. Any pit I build will quickly turn into a swimming pool. Instead, what I'm thinking of doing is to build a concrete drive-up pit with concrete ramps; i.e., a shallow pit above ground. This is the best I can do. (05-12-2014 10:09)Gregg Wrote: Hey David,Hi Gregg, thanks for the great set of questions. I'd love to see some pics of your Morton Building. (05-12-2014 10:09)Gregg Wrote: 1 looks as though the addition is going where the coach is sitting in the first pictureThe previous owner kind of messed up the utility of the building for me by building a 2200 sq ft house inside it. The house has 10' ceilings, hickory woodwork, and beautiful tiles and windows. It has two bedrooms and two baths, a full kitchen, dining room living room with fireplace. My wife fell in love with it and doesn't want me tampering with it. If I value my marriage I'll heed her words! LOL!(05-12-2014 10:09)Gregg Wrote: 2 assume Morton building is doing the additionYes, this is where the addition will be built. (05-12-2014 10:09)Gregg Wrote: 3 what will your rafter height be? In our building, I can stand upright on top of the coach but we didn’t put a ceiling, therefore I have to duck under the rafters which are about waist highIf I can achieve what you've done then I'd be happy. You're familiar with these buildings so you know just how much precious space those rafters can take. My building uses 60' raised-chord trusses. The sidewalls are only 14'. The inside height at the center of the building from the floor to the bottom chord of the rafters is 15'. This is adequate. If I can build the side dormers using 37.5' trusses and if I can maintain 15' of height at the center then I'll be happy. I want it all insulated so I'll have to find someway to insulate above the bottom chord so I can stand, or at least kneel, in the manner you describe. This is all still in the air pending word back from my Morton Bulding rep. My calculations show that the side dormer gables will maintain a 15' dimension from the floor to the bottom edge of the truss's lower chord. (05-12-2014 10:09)Gregg Wrote: 4 we had skylights put in for increased daytime lighting; I think they can do that now on the top of the side wallsThis is a great idea. I'll see about availability from my rep. Of course, everything I do has to be approved by my architectural committee... the missus! ![]() (05-12-2014 10:09)Gregg Wrote: 5 will you be putting in new concrete or using existing? If you are putting new, consider heating the floor as your heat sourceI'm going to see about pouring a layer of concrete over the existing driveway. Although I'd love to have radiant heat this may not be an option. If we go with a new slab, then I'll do radiant. (05-12-2014 10:09)Gregg Wrote: 6 since you are adding 37.5 feet, did you consider increasing to 50 and doing back in bays, that way you could add a pit in one of the bays and have other bays for future rolling stockAgain, my architectural committee has put a stake in the ground at 37.5'. We know who wears the pants around here! ![]() (05-12-2014 10:09)Gregg Wrote: 7 my rule of thumb is, if I think 2000 sq feet is enough today, then I better make it 4000, looks like you are just starting to think about the kid’s cars, we are keeping a 2004 BWM 330ci convertible for Jane’s three year old niece, HAThe best I can do is to steal a little bit of space from the existing building as shown here. This way I can use the newly installed 10' sliding door for good access: (05-12-2014 10:09)Gregg Wrote: 8 make sure you have plenty of room or access doors, so you can move things around without having to start the coachReally good point Gregg. I'll probably have entry way overhead or sliding doors installed on the long 60' side. I neglected to show these in the drawings, but they will be there. (05-12-2014 10:09)Gregg Wrote: 9 one nice addition to the coach would be a Featherlite tall trailer, for carrying stuff, kids room at the campground, etcThat sounds great; as long as it's polka dotted! Hahahahahaa
david brady, '02 Wanderlodge LXi 'Smokey' (Sold), '04 Prevost H3 Vantare 'SpongeBob' "I don't like being wrong, but I really hate being right" |
|||
|
05-13-2014, 00:40
Post: #5
|
|||
|
|||
|
RE: SpongeBob's New Home
I'll put one vote in against the skylights. They're typically the first panel to fail, will let your winter heat out and the summer heat in. Just put in decent lighting, so when you have to go to the doghouse and the kids have already taken the house area, you can see!
John Mace 06 450LXi bigger bird living in the wild hinterlands of the north free to roam without the man getting me down |
|||
|
05-14-2014, 03:48
(This post was last modified: 05-14-2014 03:48 by mhughes01.)
Post: #6
|
|||
|
|||
|
RE: SpongeBob's New Home
David,
You don't really need more room for a pit because it is underneath the bus when the bus is parked in the shop! My pit can get some water in it if the sump isn't plugged in. I had them build in a 2' deep box sump at one end below the foot of the pit. A small sump pump in there exits water outside and keeps it dry. Mike and Tracy - near Edmonton, Alberta, Canada 1999 43 LXI, "Maddy" - 60 Series Detroit 2006 Jeep Liberty CRD (Diesel) or Jeep Rubicon 4 Down Toad http://www.challengerwest.com
|
|||
|
05-14-2014, 10:04
Post: #7
|
|||
|
|||
RE: SpongeBob's New Home
(05-13-2014 00:40)Arcticdude Wrote: I'll put one vote in against the skylights. They're typically the first panel to fail, will let your winter heat out and the summer heat in. Just put in decent lighting, so when you have to go to the doghouse and the kids have already taken the house area, you can see! Hey David John is right about skylights, but since I don't heat or cool, leaks are the problem. I'm not going to say it won't happen, but we are going on 17 years with no leaks. That's why Morton doesn't push them anymore. My rafters are at 17 feet . You can see from the picture why I think more room is better, we put up a 51 foot car port when we got the bird, so I had some covered space to get dirty. Getting dirty is one of the few skills I am an expert at.[attachment=1283] Gregg & Jane Gesse 1994 WLWB 40 Mid-Door |
|||
|
05-14-2014, 12:38
(This post was last modified: 05-14-2014 14:03 by davidbrady.)
Post: #8
|
|||
|
|||
|
RE: SpongeBob's New Home
Lookin good Gregg, thanks for the pic. You've got me thinking... As you can tell, aesthetics are very important to Suzana and me; the building is prominently featured in my backyard. Since you have me thinking about rafter clearance, here's a take that would put the rafters at 16' and allow me to park the bus anywhere within the addition. The roof slope of the original building is 4 in 12, this version has the addition's roof at 6 in 12 and raised a couple of feet. I'm beginning to see that I have more freedom with roof pitch then I initially thought. Again, I'm looking at a maximum width of 36' for the addition, per the stake laid in the ground by the boss! I may not be able to go any wider than 36' but I can go as deep as I want. Sixty feet is where I'm at now but I can push that to 75'. That'll give me 3500 sq ft including the 750 sq ft taken from the existing building. Anything larger than this and I'm bumping into budget constraints. There will be other door openings. This is a super-simplified get the proportions right drawing.
I'm going to try my hand at some architectural cad software; MyArchiCad looks promising. I need to see this thing in 3D. david brady, '02 Wanderlodge LXi 'Smokey' (Sold), '04 Prevost H3 Vantare 'SpongeBob' "I don't like being wrong, but I really hate being right" |
|||
|
05-14-2014, 14:12
Post: #9
|
|||
|
|||
|
RE: SpongeBob's New Home
Just play "government". There are no budgets!! Seriously, build whatever you want, just bigger. After its been there 6 mos, it WILL be the landscape. You won't see it anymore.
John Mace 06 450LXi bigger bird living in the wild hinterlands of the north free to roam without the man getting me down |
|||
|
05-14-2014, 14:24
Post: #10
|
|||
|
|||
|
RE: SpongeBob's New Home
Hey David,
I know where you’re at, before we added our garage, I toyed with the idea of adding to our building. The MB rep was not the most enlighten, but he did spend a half day with me showing me what would work and where the problems were with what I was thinking about doing. In the end, we just went with the garage and carport. (Now I am going to have to walk outside and take a picture, so what I just wrote makes any sense.) [attachment=1286][attachment=1287][attachment=1288] Is there a particular reason to add on? A separate taller building on a lower grade might look the same height from your home, giving you the attributes you want. I know for us adding on created a new set of issues that didn’t out weight the benefits. PS save room for items which won't fit in the motorhome [attachment=1289] Gregg & Jane Gesse 1994 WLWB 40 Mid-Door |
|||
|
« Next Oldest | Next Newest »
|
User(s) browsing this thread: 1 Guest(s)

Link Directory
Wanderlodge Trader
Document Library
Calendar




![[+]](http://www.wanderlodgegurus.com/images/collapse_collapsed.gif)

If I value my marriage I'll heed her words! LOL!