|
50DN Alternator Ground Cable
|
|
09-26-2014, 16:22
(This post was last modified: 09-26-2014 17:33 by davidbrady.)
Post: #1
|
|||
|
|||
|
50DN Alternator Ground Cable
Here's what's on my Prevost; that's a 1 gauge ground cable. It's about 5' long and it terminates at a lug bolted and grounded to the frame where several other cables join including the battery negative. I'll look them up later.
david brady, '02 Wanderlodge LXi 'Smokey' (Sold), '04 Prevost H3 Vantare 'SpongeBob' "I don't like being wrong, but I really hate being right" |
|||
|
09-26-2014, 19:27
Post: #2
|
|||
|
|||
|
RE: 50DN Alternator Ground Cable
old eyes can't make the photo out
Ernie Ekberg Prevost Liberty Classic XL Weatherford, Tx http://www.ernieekbergflooring.net |
|||
|
09-26-2014, 21:48
Post: #3
|
|||
|
|||
|
RE: 50DN Alternator Ground Cable
same here David , can you place one of those arrows John s famous for lol
al perna 2000 LXI ormond beach fla |
|||
|
09-26-2014, 22:28
(This post was last modified: 09-26-2014 22:43 by davidbrady.)
Post: #4
|
|||
|
|||
|
RE: 50DN Alternator Ground Cable
Here's a better pic:
Here's the grounding stud mounted on the frame. There are eight wires connected to the stud, all are grounds: 50DN House Alternator, Bosch Chassis Alternator, Starter Motor, Chassis Battery Bank Equalizer, Chassis Battery Bank, House Battery Bank, Engine Block, and Frame: david brady, '02 Wanderlodge LXi 'Smokey' (Sold), '04 Prevost H3 Vantare 'SpongeBob' "I don't like being wrong, but I really hate being right" |
|||
|
09-27-2015, 10:56
Post: #5
|
|||
|
|||
|
RE: 50DN Alternator Ground Cable
I read that we should run a wire from the alternator negative stud , direct to the battery negative terminal to possibly eliminate the over charge of the alternator . My question ?
where on the alternator is the Negative stud/terminal ? Pics help best
al perna 2000 LXI ormond beach fla |
|||
|
09-27-2015, 11:10
(This post was last modified: 09-27-2015 21:25 by travelite.)
Post: #6
|
|||
|
|||
|
RE: 50DN Alternator Ground Cable
Hey Al,
It's right in this thread. See the pics with the red highlights. david brady, '02 Wanderlodge LXi 'Smokey' (Sold), '04 Prevost H3 Vantare 'SpongeBob' "I don't like being wrong, but I really hate being right" |
|||
|
09-27-2015, 11:35
Post: #7
|
|||
|
|||
|
RE: 50DN Alternator Ground Cable
so the Ground is the Negative that goes to the Negative terminal of the battery ?
al perna 2000 LXI ormond beach fla |
|||
|
09-27-2015, 12:23
(This post was last modified: 09-27-2015 12:38 by davidbrady.)
Post: #8
|
|||
|
|||
|
RE: 50DN Alternator Ground Cable
Al,
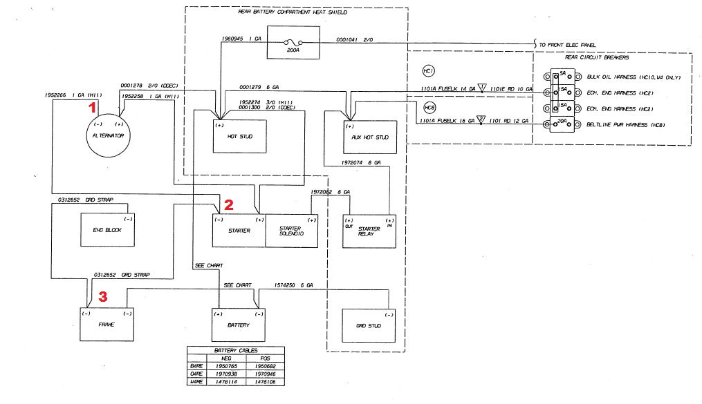
The thread that I posted has pics of the ground lug where all the grounds come together at the chassis including the alternator, batteries, and starter. There's also a pic midway down that shows the ground lug bolted to the front of the 50DN. Hi Al, In the attached pic of an LXi engine compartment area, you can take the ground from the 50DN (1) and terminate it at the starter (2) or the chassis (3). There's probably other choices but I'd look at these locations to see if they're feasible. 1 gauge wire is fine; remember this pretty much a redundancy ground. The 50DN is already grounded thru the S60 and the S60's ground strap to the chassis: david brady, '02 Wanderlodge LXi 'Smokey' (Sold), '04 Prevost H3 Vantare 'SpongeBob' "I don't like being wrong, but I really hate being right" |
|||
|
09-27-2015, 15:57
Post: #9
|
|||
|
|||
|
RE: 50DN Alternator Ground Cable
ok , I bought a Negative ground cable ( black) and using one of the open threaded holes on the Alternator , I ran a new ground direct to the battery . On Tues I will be able to check out whether this takes care of the issue .
al perna 2000 LXI ormond beach fla |
|||
|
09-27-2015, 18:34
Post: #10
|
|||
|
|||
|
RE: 50DN Alternator Ground Cable
well did not want to wait till Tues , so I decided to take a little ride
all good so far ,Tues 100 miles North drive outside new York will be the real test . We plan to hang with out youngest till she heads back to London on the 8 th . will post whether this is the fix or not
al perna 2000 LXI ormond beach fla |
|||
1 user Likes al perna's post |
|
« Next Oldest | Next Newest »
|
User(s) browsing this thread: 1 Guest(s)

Link Directory
Wanderlodge Trader
Document Library
Calendar





![[+]](http://www.wanderlodgegurus.com/images/collapse_collapsed.gif)